Modulares Traumhaus – U
U-förmige Modulhäuser überzeugen mit einem besonderen Grundriss:
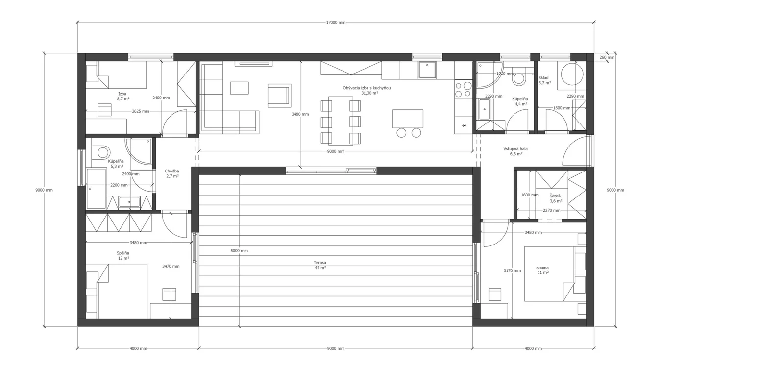
Im Zentrum liegt ein Innenhof oder eine Terrasse, eingerahmt von drei Gebäudeseiten.
Diese Anordnung formt einen geschützten Rückzugsort – perfekt für Entspannung, Gartenarbeit oder Grillabende,
abgeschirmt vom Trubel draußen.
Häuser in U-Form eignen sich perfekt für größere Familien.
Sie erlauben eine bequeme Trennung der Wohnzonen – etwa zwischen Wohnzimmer, Schlafzimmern und Gästezimmern.
Lieferumfang
Zum Lieferumfang gehören:
Ausführung der Lieferung exakt nach den Wünschen des Auftraggebers
fachgerechte Montage der Module zu einem voll funktionsfähigen Modulgebäude
Prüfbericht über Inspektion und Abnahme der Elektroinstallation
Zertifikate aller verwendeten Materialien
Konformitätserklärung
Qualitäts- und Garantienachweis / Garantiezeit 24 Monate ab Bauübergabe
Vom Lieferumfang ausgenommen sind:
Externe Anschlüsse an die Versorgungsnetze (Abwasser, Wasser, Elektro) – inklusive Elektroprojekt
Erstellung eines Brandschutzkonzepts
Erdung des Gebäudes
Fundamentarbeiten zur Aufstellung des Objekts
Transport an den Bestimmungsort
Beladung der Fahrzeuge
Entladung vor Ort sowie Kranarbeiten im Rahmen der Objektmontage
Technische Parameter
Modulkonstruktion
- Stabile, geschweißte Rahmenkonstruktion aus geschlossenen Stahlprofilen mit 3 mm Wandstärke.
- Geprüfte und zertifizierte Schweißqualität nach ISO 9001:2000 und STN EN ISO 3834-2.
- Alle Metallteile zweifach mit korrosionsbeständiger Zinkphosphat-Grundierung geschützt.
- Hochwertige Endbeschichtung der sichtbaren Metallteile mit langlebigem Alkydlack.
Bodenkonstruktion
- hochwertige Dampfsperrfolie Guttafol ALU
- robustes, verzinktes T8-Profilblech
- effiziente Dämmung EPX 70 (80 mm), Graphit
- OSB3-Spanplatte, 15 mm stark
- Fermacell-Platte, 15 mm stark
- komfortable Fußbodenheizung WARMUP mit modernem Touch-Thermostat
- Sockelleisten inklusive Zubehör
- ausgleichende Nivelliermasse
- Keramikfliesen oder eleganter Laminatboden
Deckenkonstruktion
- stabile Deckenprofile UD
- tragende Deckenprofile CD
- hochwertige Dampfsperrfolie Guttafol ALU
- robuste Gipskartonplatte Knauf Diamant X, 12,5 mm
- professionelle Spachtelung und weißer Grundanstrich
- OSB3-Spanplatte, 15 mm stark
Dachkonstruktion und Abdichtung
- hochwertige Holzkonstruktion C24 120×45
- OSB3-Spanplatte, 15 mm stark
- elegante Attikaverblechung AL anthrazit, 0,8 mm
- dauerhafte Dachabdichtung mit Fatrafol 810V, 1,5 mm
- Geotextil 300 g/m² für zusätzlichen Schutz
- effiziente Dämmung Isover – Unirol Profi, 120 mm
- hochwertige Regenfallrohre und Dachrinnen von KJG
Außenwandkonstruktion
- hochwertige Dämmung Slovizol 100 mm mit 2 mm Putz
- OSB- oder Fermacell-Platten, 15 mm stark
- atmungsaktive Folie Jutadach 135
- effiziente Mineralwolldämmung Isover Unirol Profi, 120 mm
- stabile Holzkonstruktion C24 120×45
- zuverlässige Dampfsperrfolie Guttafol ALU
- robuste Gipskartonplatte Knauf Diamant X, 12,5 mm
- professionelle Spachtelung und weißer Grundanstrich
Innenwandkonstruktion /nichttragende Wände/
- robuste Gipskartonplatte Knauf Diamant X, 12,5 mm
- professionelle Spachtelung und weißer Grundanstrich
- stabile Holzkonstruktion C24 90×45
- effiziente Mineralwolldämmung Isover Unirol Profi, 100 mm
Sanitärinstallationen
- fachgerechte Installation der Abwasserleitungen
- Installation moderner Wasserleitungen
- EOV 180 l Speicher – individuell wählbar
- Vorbereitung der Wasseranschlüsse für die Küchenzeile
- Waschbecken mit eleganter Armatur – nach Wunsch auswählbar
- hochwertiges, wandhängendes WC von Geberit
Bauelemente (Fenster und Türen)
- große Eingangstür 1300 mm x 2200 mm
- großzügige Balkontüren, Dreh-Kipp, 2500 mm x 2300 mm
- Kippfenster 1200 mm x 600 mm
- zusätzliche Balkontür, Dreh-Kipp, 900 mm x 2300 mm
Innentüren mit Umfassungszarge
- Innentüren, 90 cm breit
- Innentür, 70 cm breit

Professionelle Elektroinstallationen
Unsere Elektroinstallation erfolgt mit hochwertigen CYKY-Leitungen, die vollständig in den Wänden verlegt sind.
Die Verteilung ist mit einem modernen Fehlerstromschutzschalter ausgestattet.
Steckdosen und Geräte sind mit 16 A, Lichtkreise mit 10 A abgesichert – für maximale Sicherheit.
Für Schwachstrominstallationen ist eine Vorbereitung in Schutzrohren vorgesehen, in die nach Absprache mit den Anbietern die entsprechenden Kabel eingebaut werden.
Preis
Wir realisieren Bauten individuell nach den Wünschen unserer Kunden – deshalb ist auch jede Preisgestaltung einzigartig.
Der endgültige Preis richtet sich nach Größe und Ausstattung des Projekts.





